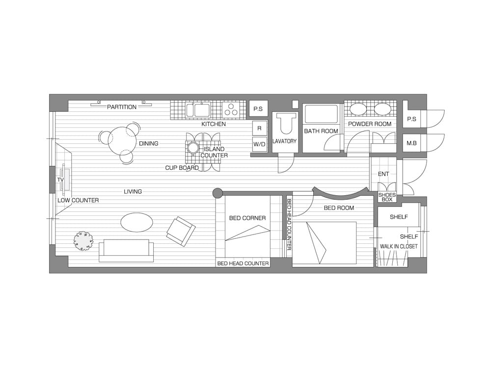
玄関を入るとLDKまで一直線に空間が繋がる、抜け感のあるプラン。キッチンは壁付け・オープンタイプの仕様で、キッチン背面のアイランドカウンターは料理の盛り付けや作業台に便利です。リビングの一角に設けられたベッドコーナーは、大きなソファーにしてくつろいだり、お昼寝スペースにもぴったり。玄関横の洋室はアールの壁が空間に動きを演出し、共用廊下に面する部分を収納にしてプライバシーを確保。ダブルボウルの洗面台が用いられ、集中しやすい朝の時間帯でも2人同時に身支度をする事が出来ます。
- バルコニー面積:
- -
- LDK帖数:
- -
- 主寝室帖数:
- -
- キッチンタイプ:
- オープン型・I型
- 玄関ポーチ
- キッチン勝手口
- 浴室に窓
- ルーフバルコニー
- 専用庭
- リノベーション済



