イエナカスタッフ
さん
記事数 5661
参考になった 2
その他
間取り図
間取りタイプ
0 平米台
3LDK
センターイン
縦長リビング(続き間1)
中部屋
last update : 2017.9.30
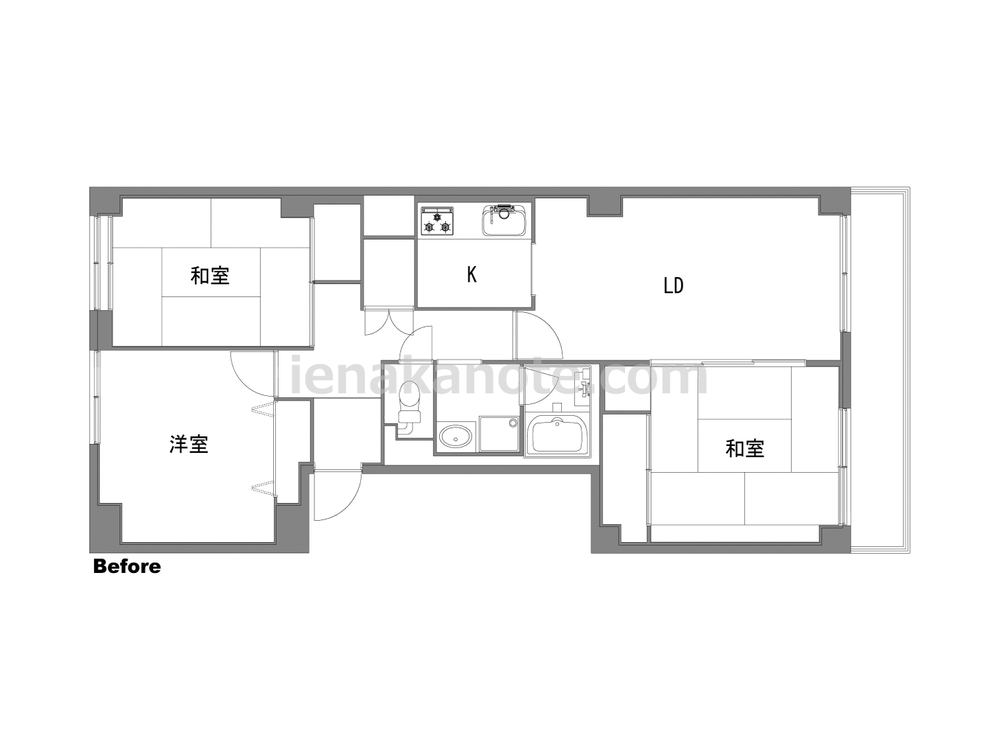
独立キッチンがある3LDKセンターインのプラン
間取り:3LDK 広さ:0.00平米 (間取りID: 53482)
拡大
バルコニー面積:
-
LDK帖数:
-
主寝室帖数:
-
キッチンタイプ:
独立型・I型
玄関ポーチ
キッチン勝手口
浴室に窓
ルーフバルコニー
専用庭
リノベーション済
クリップする
0
参考になった
0
この間取りに似ているリフォームのプラン(間取り)