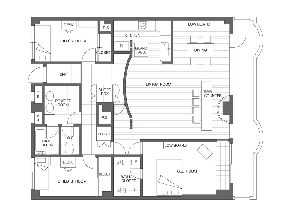
玄関ホールはタイル敷きで、シューズボックスは上部カウンターになっています。玄関ホールとLDK壁は特徴的なアール型。キッチンはリビング側から見えにくいようゆるやかに仕切られています。バルコニーに面してバーカウンターがあり、夫婦でゆっくり会話を楽しんだり、友人を招いてパーティーを楽しむのにぴったり。LDKを通って出入りする主寝室にはウォークインクロゼットが設けられています。洗面室は慌ただしい朝の身支度に便利なダブルボウルの仕様です。
- バルコニー面積:
- -
- LDK帖数:
- -
- 主寝室帖数:
- -
- キッチンタイプ:
- 独立型・L型
- 玄関ポーチ
- キッチン勝手口
- 浴室に窓
- ルーフバルコニー
- 専用庭
- リノベーション済



