トシさんの手帖

トシさんのイエナカ代表写真

トシ さん

ようやく、JR伊丹駅近物件でリフォーム始めました
宜しくお願いします。

マンション
3LDK

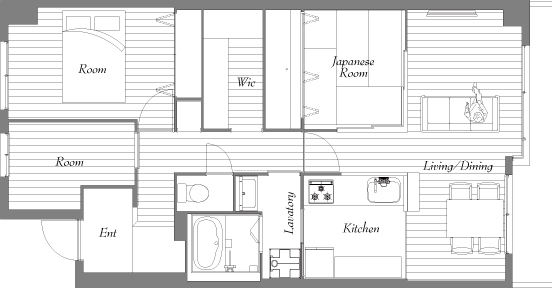
間取り図

  • Before
  • After

Afterのルーム名

  • 玄関
  • 廊下
  • リビング
  • ダイニング
  • キッチンスペース
  • 和室1
  • 洋室1
  • 洋室2
  • 廊下収納
  • 洗面室
  • 浴室
  • トイレスペース

ルームとアイテム

  • 玄関

    各記事の代表写真を見る 施工中 記事数 10
  • 廊下

    各記事の代表写真を見る 施工中 記事数 10
  • リビング

    各記事の代表写真を見る 施工中 記事数 10
  • ダイニング

    各記事の代表写真を見る 施工中 記事数 10
  • 洋室1

    各記事の代表写真を見る 施工中 記事数 10
  • 洋室2

    各記事の代表写真を見る 施工中 記事数 10
  • 和室1

    各記事の代表写真を見る 施工中 記事数 10
  • キッチンスペース

    各記事の代表写真を見る 施工中 記事数 10
  • トイレスペース

    各記事の代表写真を見る 施工中 記事数 10
  • 洗面室

    各記事の代表写真を見る 施工中 記事数 10
  • 浴室

    各記事の代表写真を見る 施工中 記事数 10
  • 廊下収納

    各記事の代表写真を見る 施工中 記事数 10
  • バルコニー・ベランダ