アジ1匹さんの手帖

アジ1匹さんのイエナカ代表写真

アジ1匹 さん

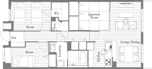
マンション
69 平米
3LDK

間取り図

  • Before
  • After

Afterのルーム名

  • 玄関
  • 廊下
  • キッチンスペース
  • リビングダイニング
  • 和室1
  • 洋室1
  • ウォークインクロゼット
  • 洋室2
  • 洗面室
  • 浴室
  • トイレスペース

ルームとアイテム

  • 玄関

    各記事の代表写真を見る 施工中 記事数 8
  • 廊下

    各記事の代表写真を見る 施工中 記事数 8
  • リビングダイニング

    各記事の代表写真を見る 施工中 記事数 8
  • 洋室1

    各記事の代表写真を見る 施工中 記事数 8
  • 洋室2

    各記事の代表写真を見る 施工中 記事数 8
  • 和室1

    各記事の代表写真を見る 施工中 記事数 8
  • キッチンスペース

    各記事の代表写真を見る 施工中 記事数 8
  • トイレスペース

    各記事の代表写真を見る 施工中 記事数 8
  • 洗面室

    各記事の代表写真を見る 施工中 記事数 8
  • 浴室

    各記事の代表写真を見る 施工中 記事数 8
  • ウォークインクロゼット

    各記事の代表写真を見る 施工中 記事数 8
  • シューズクローク

  • バルコニー・ベランダ

  • その他