suzuken98さんの手帖

- 一戸建て

- 162 平米

- 5SLDK

- リフォーム済み

- 6人
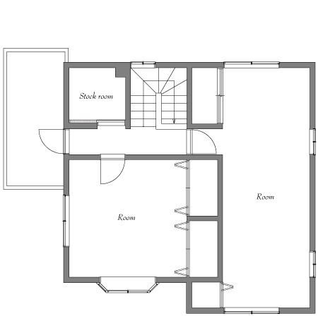
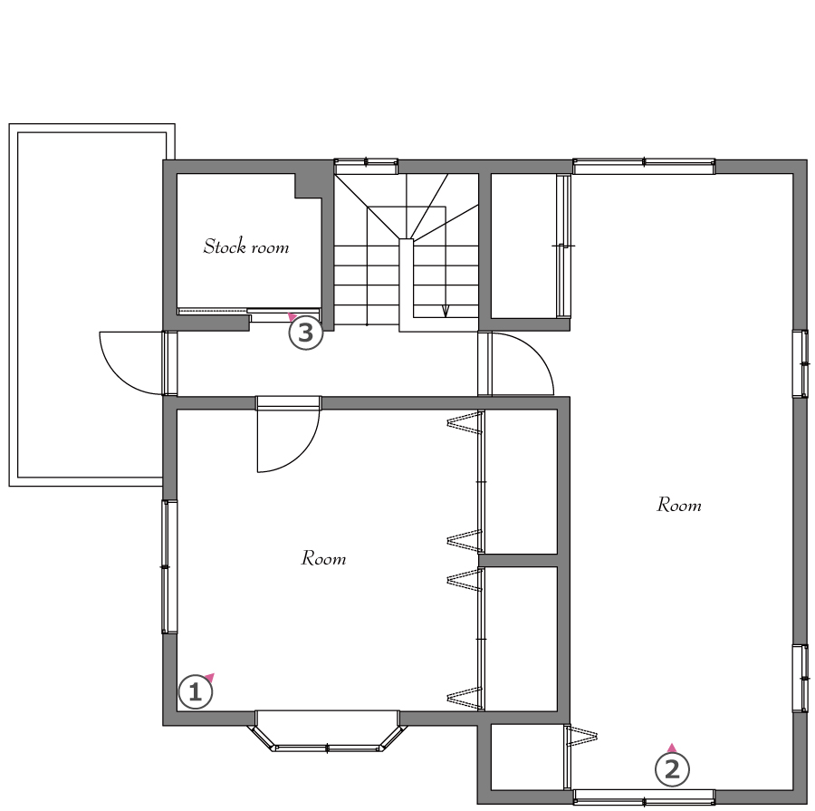
間取り図
Afterのルーム名
- ①玄関
- ②1F廊下
- ③洋室1
- ④和室1
- ⑤セカンドリビング
- ⑥洗面室
- ⑦浴室
- ⑧1Fトイレスペース
- ⑨階段
- ①キッチンスペース
- ②リビングダイニング
- ③洋室2
- ④2F納戸
- ⑤2F廊下
- ⑥洗面台
- ⑦2Fトイレスペース
ルームとアイテム
-
玄関
各記事の代表写真を見る 施工中
記事数 8
-
1F廊下
各記事の代表写真を見る 施工中
記事数 8
-
2F廊下
各記事の代表写真を見る 施工中
記事数 8
-
階段
各記事の代表写真を見る 施工中
記事数 8
-
リビングダイニング
各記事の代表写真を見る 施工中
記事数 8
-
セカンドリビング
各記事の代表写真を見る 施工中
記事数 8
-
洋室1
各記事の代表写真を見る 施工中
記事数 8
-
洋室2
各記事の代表写真を見る 施工中
記事数 8
-
洋室3
各記事の代表写真を見る 施工中
記事数 8
-
洋室4
各記事の代表写真を見る 施工中
記事数 8
-
和室1
各記事の代表写真を見る 施工中
記事数 8
-
キッチンスペース
各記事の代表写真を見る 施工中
記事数 8
-
1Fトイレスペース
各記事の代表写真を見る 施工中
記事数 8
-
2Fトイレスペース
各記事の代表写真を見る 施工中
記事数 8
-
洗面台
各記事の代表写真を見る 施工中
記事数 8
-
洗面室
各記事の代表写真を見る 施工中
記事数 8
-
浴室
各記事の代表写真を見る 施工中
記事数 8
-
3F納戸
各記事の代表写真を見る 施工中
記事数 8
-
2F納戸
各記事の代表写真を見る 施工中
記事数 8
-
ウォークインクロゼット
記事数 0
-
蔵・納屋・物置
記事数 0
-
バルコニー・ベランダ
記事数 0
-
ガレージ
記事数 0
-
その他
記事数 0