2SLDK

2SLDKの間取りプラン集です。2SLDKは、2LDKに納戸が付いたプラン。納戸の中には、建築基準法で定められた採光や天井高などの居室としての基準は満たしていないものの、4帖以上の広さがあり、個室として使えるものも多くあります。また逆に4帖に満たない収納や書斎スペースなどに適した納戸もあります。2SLDKは、広さが50平米台〜60平米台のものが多く、2人家族から3人家族向き。納戸の生かし方が、ポイントのプランです。
  • 広さ
    バルコニー面積
    LDK帖数
    主寝室帖数
  • キッチンタイプ

間取りタイプ

部屋の数 :
部屋の位置:

選択

  •  

    イエナカスタッフさんの
    間取り

    LDKを通ってそれぞれの個室へアクセスする2SLDKの間取り

    専有面積64.44平米の2SLDK。玄関を入ってすぐにLDKがある居室空間を優先したプラン。キッチンは壁付けのオープンタイプ。各部屋に収納スペース付きです。

    last update : 2015年 11月 23日
    0
    0
    0
    144
  •  

    イエナカスタッフさんの
    間取り

    螺旋階段と駐車場が特徴のメゾネット型2SLDKプラン

    専有面積144.46平米の2SLDK。ビルトインガレージ付きです。1階から3階へは螺旋階段で行き来する、デザイン性の高いプラン。LDKは3階部分にあります。2階と3階の2ヶ所にインナーテラス付きで、洗面室から直接テラスへ出られるため、家事...

    last update : 2015年 11月 23日
    0
    0
    0
    158
  •  

    イエナカスタッフさんの
    間取り

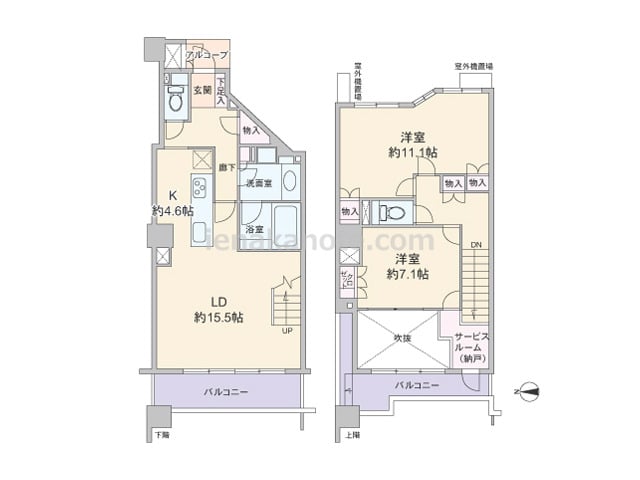
    LD上部に開放的な吹抜がある2SLDKメゾネットプラン

    専有面積98.36平米の2SLDK。メゾネットタイプです。玄関前にはアルコーブ付き。キッチンは廊下からもリビングからもアクセスできる2WAY。リビング階段仕様で、家族の動きがわかって安心です。またリビング上部には吹抜があり、開放的。上階部...

    last update : 2015年 12月 3日
    0
    0
    0
    153
  •  

    イエナカスタッフさんの
    間取り

    専用ポーチ、専用庭がある2SLDKの間取り

    専有面積72.96平米の2SLDK。専用庭付きのプラン。共用廊下との間に吹き抜けとポーチがあり、プライバシーに配慮されています。LDKと和室6帖、洋室約5.1帖が続き間になっており、生活シーンに合わせてフレキシブルに使える造り。カウンター...

    last update : 2015年 11月 23日
    0
    0
    0
    156
  •  

    イエナカスタッフさんの
    間取り

    広いサービススペースがあるメゾネット型2SLDKプラン

    専有面積118.69平米の2SLDK。1階は南北両面バルコニー、地階には広々としたテラスがあります。LDは16.8帖、キッチンはカウンタータイプで、家事効率の良い2WAY動線。地階のサービススペースは18.9帖と広く、様々な用途に利用でき...

    last update : 2015年 11月 23日
    0
    0
    0
    143
  •  

    イエナカスタッフさんの
    間取り

    独立キッチンが特徴の横長リビング2SLDKプラン

    専有面積59.12平米の2SLDK。LDKと和室が続き間になっており、襖を開ければより広々とリビングを使えます。全室に収納スペース付きです。

    last update : 2016年 3月 14日
    0
    0
    0
    167
  •  

    イエナカスタッフさんの
    間取り

    バルコニーが2カ所ある2SLDKワイドスパンのプラン

    専有面積75.44平米の2SLDK。西側のバルコニーに面して3カ所に窓があるワイドスパンのプラン。キッチンは対面カウンタータイプで、料理をしながら家族と会話を楽しめます。LDKには和室が隣接しており、襖をあけて一つの大きな空間としても使用...

    last update : 2015年 11月 23日
    0
    0
    0
    160
  •  

    イエナカスタッフさんの
    間取り

    住居と共用廊下の間にアルコーブが設けられた2SLDKの間取り

    専有面積63.63平米の2SLDK。玄関前にアルコーブがあり、共用廊下に直接面する居室の無いプライバシー重視のプラン。LDKと和室が続き間になっており、襖を開ければより広々とリビングを使えます。各室に収納スペース付きです。リビング側はアウ...

    last update : 2015年 11月 23日
    0
    0
    0
    138
  •  

    イエナカスタッフさんの
    間取り

    全部屋バルコニーに面して窓がある2SLDKの間取り

    専有面積61.00平米の2SLDK。LDKと和室が続き間になっており、襖を開ければより広々とリビングを使えます。バルコニーは2面付き。共用廊下に直接面する居室が無く、プライバシー重視のプランです。

    last update : 2015年 11月 23日
    0
    0
    0
    151
  •  

    イエナカスタッフさんの
    間取り

    LDK、和室、フリールームの3部屋が続き間になった2SLDKの間取り

    専有面積58.70平米の2SLDK。LDKと和室が続き間になっており、和室とフリールームは続き間のため、様々なライフシーンに対応できるプランです。フリールームには窓が無いものの、クロゼットがあり、和室と仕切れば独立した1室としても利用でき...

    last update : 2015年 12月 3日
    0
    0
    0
    146
  •  

    イエナカスタッフさんの
    間取り

    サービスルームに机や棚に利用できるカウンターがある2SLDKの間取り

    専有面積61.04平米の2SLDK。LDK、和室をぐるりと回遊できるプラン。和室2間、リビングと和室が続き間になっており、ライフシーンにあわせて間取りをフレキシブルに変更できます。サービスルームにはカウンター付きで、収納部屋としても、書斎...

    last update : 2016年 4月 4日
    0
    0
    0
    141
  •  

    イエナカスタッフさんの
    間取り

    和室の板間や2WAY動線のキッチンが特徴の2SLDKプラン

    専有面積72.45平米の2SLDK。廊下面積が少ない、居住空間を広く取ったプラン。LDKと2部屋の和室が続き間で、生活シーンに合わせてフレキシブルに使用可能。LDKにコーナーサッシがもちいられているのも特徴です。和室には収納家具などを置く...

    last update : 2015年 11月 23日
    0
    0
    0
    135