3K~3SLDK

  • 広さ
    バルコニー面積
    LDK帖数
    主寝室帖数
  • キッチンタイプ

間取りタイプ

部屋の数 :
部屋の位置:

選択

  •  

    イエナカスタッフさんの
    間取り

    3LDK 72.9平米

    専有面積72.90平米の3LDK。居室の窓が共用廊下に直接面しておらず、玄関先から室内を見通せない、プライバシーが確保されたプラン。LDKは約16.5帖、隣接する和室の引き戸を開放すれば約21.1帖大の空間に利用可能。キッチンは対面カウン...

    last update : 2015年 7月 23日
    0
    0
    0
    159
  •  

    イエナカスタッフさんの
    間取り

    3LDK 77.45平米

    専有面積77.45平米の3LDK。LDK約15.5帖にはコーナーサッシが用いられており、対面式キッチンからはリビング・ダイニングを見渡す事ができます。和室4.5帖は室内廊下とLDKの2カ所から出入りでき、くつろぎのリビングスペースや来客時...

    last update : 2015年 7月 23日
    0
    0
    0
    151
  •  

    イエナカスタッフさんの
    間取り

    3LDK 70.42平米

    専有面積70.42平米の3LDK。居室の窓が共用廊下に面しておらず、玄関先から室内を見通せない、プライバシーを確保したプラン。LDKは約15.4帖、キッチンは対面カウンタータイプの仕様で、キッチン横の窓は換気がしやすく快適です。LDK横の...

    last update : 2015年 7月 23日
    0
    0
    0
    162
  •  

    イエナカスタッフさんの
    間取り

    3LDK 69.75平米

    専有面積69.75平米の3LDK。どの部屋も6帖以上のゆとりが確保された、専用庭付きプラン。玄関先から室内を見通せない造りで、採光に配慮された窓もあります。LDK約10.0帖が部屋の中央に位置し、キッチンは開放的なI型の壁付け・オープンタ...

    last update : 2015年 7月 23日
    0
    0
    0
    155
  •  

    イエナカスタッフさんの
    間取り

    3LDK 66.45平米

    専有面積66.45平米の3LDK。南北両面に窓がある、センターインのプラン。LDK約12.0帖以外は和室の落ち着いた造りで、LDKと続き間の4.5帖、6帖の引き戸を開放すれば空間をより広々と使う事も可能です。キッチンはI型のウォールタイプ...

    last update : 2015年 7月 23日
    0
    0
    0
    158
  •  

    イエナカスタッフさんの
    間取り

    約3.5帖の家事室が付いた3SLDKの間取り

    専有面積90.98平米の3SLDK。共用廊下に直接面する窓が無い、両面バルコニー・センターインのプラン。LDK約17.5帖にはコーナーサッシが用いられ、キッチンはリビング全体を見渡せる対面カウンタータイプの仕様。キッチン背面に家事室(洗濯...

    last update : 2015年 12月 14日
    0
    0
    0
    155
  •  

    イエナカスタッフさんの
    間取り

    3LDK 63.48平米

    専有面積63.48平米の3LDK。独立型のキッチンはリビング・ダイニングへ生活感が伝わりにくいのが特徴。LDK約13.0帖に隣接する和室の引き戸を開放すれば約19.0帖大の空間に利用でき、和室は室内廊下からも出入りできます。洋室約5.1帖...

    last update : 2015年 7月 23日
    0
    0
    0
    170
  •  

    イエナカスタッフさんの
    間取り

    ダイニング・キッチンに洗面台がある3DKの間取り

    専有面積45.36平米の3DK。全部屋DKを通って出入りする、家族のコミュニケーションの機会が増えるプラン。和室の引き戸を開放すれば、空間をより広々と使う事が出来ます。バルコニーに面する和室には押入がありませんが、その他の居室に収納スペー...

    last update : 2015年 11月 20日
    0
    0
    0
    163
  •  

    イエナカスタッフさんの
    間取り

    3LDK 87.08平米

    専有面積87.08平米の3LDK。両面バルコニー、センターインのプラン。全部屋6帖以上のゆとりが確保されています。LDKは約14.4帖、キッチンは料理中も家族と会話を楽しめる対面カウンター式。和室6帖は室内廊下と玄関ホールの2カ所から出入...

    last update : 2015年 7月 23日
    0
    0
    0
    149
  •  

    イエナカスタッフさんの
    間取り

    3LDK 67.04平米

    専有面積67.04平米の3LDK。横長リビングのプラン。LDK約15.2帖に隣接する和室の引き戸を開放すれば、約19.7帖大の空間にする事が出来ます。キッチンは料理中もリビング・ダイニングを見渡せる対面カウンター仕様。収納が各所に設けられ...

    last update : 2015年 7月 23日
    0
    0
    0
    163
  •  

    イエナカスタッフさんの
    間取り

    ウォークインクロゼットと納戸が各2カ所ある3SLDKの間取り

    専有面積82.08平米の3SLDK。玄関には採光や風通しに配慮した窓があります。LDKは約17.9帖の広さがあり、キッチンは対面カウンタータイプの仕様。キッチンから洗面室へアクセスできます。和室も室内廊下とLDKの2カ所から出入りが可能。...

    last update : 2015年 12月 14日
    0
    0
    0
    159
  •  

    イエナカスタッフさんの
    間取り

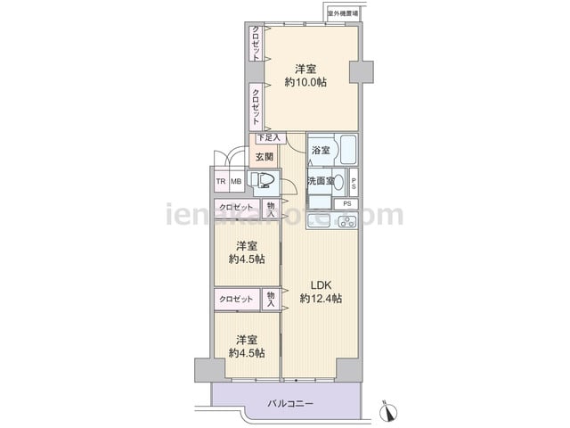
    3LDK 73.59平米

    専有面積73.59平米の3LDK。玄関先から室内を直接見通せない、センターインのプラン。LDK約12.4帖と洋室約4.5帖は続き間になっており、子ども部屋に利用すれば親子のコミュニケーションの機会が増えます。主寝室は広々約10.0帖大。各...

    last update : 2015年 7月 23日
    0
    0
    0
    163