3K~3SLDK

  • 広さ
    バルコニー面積
    LDK帖数
    主寝室帖数
  • キッチンタイプ

間取りタイプ

部屋の数 :
部屋の位置:

選択

  •  

    OKさんの
    間取り

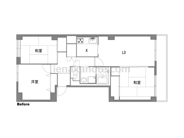
    和室は廊下とリビングの2カ所から出入りが出来る3LDK

    last update : 2017年 9月 30日
    0
    0
    0
    0
  •  

    イエナカスタッフさんの
    間取り

    玄関ホールとキッチンの2カ所から洗面室へ行き来ができる4LDK

    last update : 2017年 9月 30日
    0
    0
    0
    0
  •  

    kimkimさんの
    間取り

    LDKに収納が2カ所と畳スペースがあるプラン

    last update : 2017年 9月 30日
    0
    0
    0
    2
  •  

    大葉とろろご飯さんの
    間取り

    LDKと洋室の引き戸を開放してリビングの延長に利用できる4LDKプラン

    last update : 2017年 9月 30日
    0
    0
    0
    1
  •  

    stさんの
    間取り

    リビングの一角が三角にせり出す3LDKの間取り

    last update : 2017年 9月 30日
    0
    0
    0
    1
  •  

    なべさんの
    間取り

    隠れ家のような畳スペースがある3LDKプラン

    last update : 2017年 9月 30日
    0
    0
    0
    0
  •  

    mugiさんの
    間取り

    玄関のすぐ近くに書斎がある3SLDKの間取り

    last update : 2017年 9月 30日
    0
    0
    0
    0
  •  

    yasoonさんの
    間取り

    LDKに洋室が隣接し、洗面室は2カ所から出入りが出来る3LDK

    3LDK

    last update : 2017年 9月 30日
    0
    0
    0
    3
  •  

    イエナカスタッフさんの
    間取り

    独立キッチンがある3LDKセンターインのプラン

    last update : 2017年 9月 30日
    0
    0
    0
    0
  •  

    KEINさんの
    間取り

    リビングに収納が2カ所と畳コーナーがある1LDK

    last update : 2017年 9月 30日
    0
    0
    0
    0
  •  

    イエナカスタッフさんの
    間取り

    部屋の中央に独立型キッチンがある3SLDKの間取り

    専有面積94.72平米の3LDK。共用廊下と住戸との間には吹抜けがあり、室内廊下はクランク型になっているなど、プライバシーに配慮されています。ワイドスパンで開放感のあるプラン。キッチンは家事効率の良いL字型です。主寝室は9帖と広くウォーク...

    last update : 2016年 4月 11日
    0
    0
    0
    126
  •  

    イエナカスタッフさんの
    間取り

    収納豊富で花台も3カ所ある3SLDKの間取り

    専有面積150.86平米の3SLDK。どの部屋も6帖以上の広さが確保されたプラン。共用廊下に居室の窓が面しておらず、玄関先から室内を見通せないなどプライバシー性の高い造りです。LDKは約32.0帖大と大変広く、アイランドキッチンや壁一面の...

    last update : 2016年 4月 11日
    0
    0
    0
    118