3K~3SLDK

  • 広さ
    バルコニー面積
    LDK帖数
    主寝室帖数
  • キッチンタイプ

間取りタイプ

部屋の数 :
部屋の位置:

選択

  •  

    イエナカスタッフさんの
    間取り

    クォーターアーチを描く壁が特徴の3LDKプラン

    専有面積109.16平米の3LDK。リビング・ダイニング約14.4帖はアールを描く壁が特徴的。和室の引き戸を開放すれば約20.4帖大の空間にする事が出来ます。キッチンは対面・カウンタータイプの仕様で、換気に配慮された窓付きです。主寝室約9...

    last update : 2016年 2月 15日
    0
    0
    0
    118
  •  

    イエナカスタッフさんの
    間取り

    室内廊下が無いワイドスパンの3DK

    専有面積42.78平米の3DK。室内廊下がない、居室空間を優先したプラン。どの部屋もDK約6.0帖を通って行き来するため、家族のコミュニケーションの機会が増えます。トイレは洗面室を通って出入りする造り。洋室約4.5帖、洋室約5.0帖にはク...

    last update : 2016年 2月 15日
    0
    0
    0
    131
  •  

    イエナカスタッフさんの
    間取り

    3LDK 73.53平米

    専有面積73.53平米の3LDK。玄関先から室内を見通せず、共用廊下に面する窓も無い、プライバシー性の高いプラン。LDK約15.0帖は二面採光。キッチンは対面カウンタータイプの仕様で、換気に配慮された窓があります。和室は室内廊下とLDKの...

    last update : 2015年 7月 23日
    0
    0
    0
    144
  •  

    イエナカスタッフさんの
    間取り

    3LDK 61.27平米

    専有面積61.27平米の3LDK。全部屋バルコニーに面する開放的なプラン。LDK約11.0帖は部屋の中央に位置し、キッチンはI型の壁付け・オープンタイプ。二面採光の洋室約6.0帖にはクロゼットがありませんが、その他の居室と玄関ホールに収納...

    last update : 2015年 4月 25日
    0
    0
    0
    125
  •  
    イエナカプロ

    さんの
    間取り

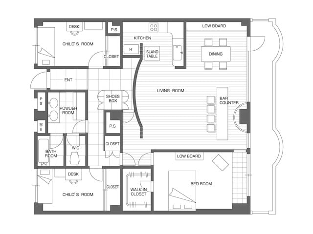
    エントランスとLDKを仕切る壁がゆるやかなカーブを描く3LDK

    玄関ホールはタイル敷きで、シューズボックスは上部カウンターになっています。玄関ホールとLDK壁は特徴的なアール型。キッチンはリビング側から見えにくいようゆるやかに仕切られています。バルコニーに面してバーカウンターがあり、夫婦でゆっくり会話...

    last update : 2016年 2月 22日
    0
    0
    0
    119
  •  

    イエナカスタッフさんの
    間取り

    3LDK 73.59平米

    専有面積73.59平米の3LDK。共用廊下に直接面する居室の窓が無く、玄関から居室が見通せない造りでプライバシーを確保。LDKは約12.5帖、キッチンは壁付け・オープンタイプ。LDKと和室4.5帖・洋室約6.0帖が続き間になっており、洋室...

    last update : 2015年 3月 27日
    0
    0
    0
    125
  •  

    イエナカスタッフさんの
    間取り

    LDKは約47帖の広さがある3LDKの間取り

    専有面積173.72平米の3LDK。全室6帖以上のゆとりあるプラン。勝手口と玄関前に専用ポーチがあり、玄関は親子扉の仕様。LDKは約47.1帖大と大変広く、キッチンもゆとりがあるので家族と一緒に料理を楽しめます。洗面室とユーティリティース...

    last update : 2016年 2月 8日
    0
    0
    0
    120
  •  

    イエナカスタッフさんの
    間取り

    3LDK 59.6平米

    専有面積59.6平米の3LDK。共用廊下に直接面する住居の窓が無く、プライバシーが確保されたプラン。LDKは約14.6帖大、キッチンは家事をしながら家族とコミュニケーションが取りやすいカウンタータイプ。和室4.5帖の襖を開放すれば、約19...

    last update : 2016年 4月 11日
    0
    0
    0
    131
  •  

    イエナカスタッフさんの
    間取り

    3LDK 74.09平米

    専有面積74.09平米の3LDK。玄関前に専用ポーチがあり、ポーチ内にはトランクルームが設けられています。LDKはゆとりの約15.9帖大。カウンタータイプのキッチンは家事をしながら家族の様子を伺えます。LDKと続き間になった和室6帖は廊下...

    last update : 2015年 7月 23日
    0
    0
    0
    100
  •  

    イエナカスタッフさんの
    間取り

    3LDK 76.58平米

    専有面積76.58平米の3LDK。キッチンは家事中も家族に目が届くカウンタータイプ。LDKと和室が続き間で、繋げて約22.4帖の一つの空間としても使用可能。各部屋に収納スペース付き。主寝室は約7.4帖大とゆとりがあります。

    last update : 2015年 7月 23日
    0
    0
    0
    124
  •  

    イエナカスタッフさんの
    間取り

    3LDK 80.19平米

    専有面積80.19平米の3LDK。玄関前にアルコーブがあります。LDKはゆとりの約17.0帖大。生活感が出やすいキッチンは独立型のため、リビングダイニングはくつろぎの空間を演出することが可能。和室6帖は、LDK側の襖を開放して約23.0帖...

    last update : 2015年 3月 27日
    0
    0
    0
    133
  •  

    イエナカスタッフさんの
    間取り

    3LDK 72.45平米

    専有面積72.45平米の3LDK。玄関扉は内開き。玄関スペースは限られますが防犯性にすぐれています。センターリビングのプランでLDKは約12.5帖、キッチンは壁付け・オープンタイプ。和室2部屋はLDKを通ってアクセスする造り。洋室約7.5...

    last update : 2015年 3月 27日
    0
    0
    0
    130